Corso Karlín
Kontaktujte nás

Pavel Novák
Vedoucí oddělení pronájmu kanceláří

Matěj Baranek
Associate Director

Ondřej Šimek
Associate

Martin Ducháč
Senior Office Consultant

Eliška Kantorová
Leasing Consultant

Renata Kromíchalová
Research Analyst & Team Coordinator

Zuzana Šancová
Senior Office Consultant
Corso Karlín: inspirativní kanceláře v industriálním stylu v centru Karlína
Corso Karlín je moderní administrativní komplex nacházející se v oblíbené lokalitě Prahy 8 – Karlín, konkrétně v ulici Křižíkova 36a. Projekt vznikl kompletní rekonstrukcí bývalé tovární budovy a nabízí k pronájmu kancelářské prostory za cenu od 17,00 do 17,50 EUR/m2/měsíc. Díky propojení industriálního designu s moderními technologiemi a výborné dopravní dostupnosti je Corso Karlín ideálním místem pro firmy, které hledají inspirativní pracovní prostředí v širším centru města.
Kancelářské prostory s charakterem a flexibilitou
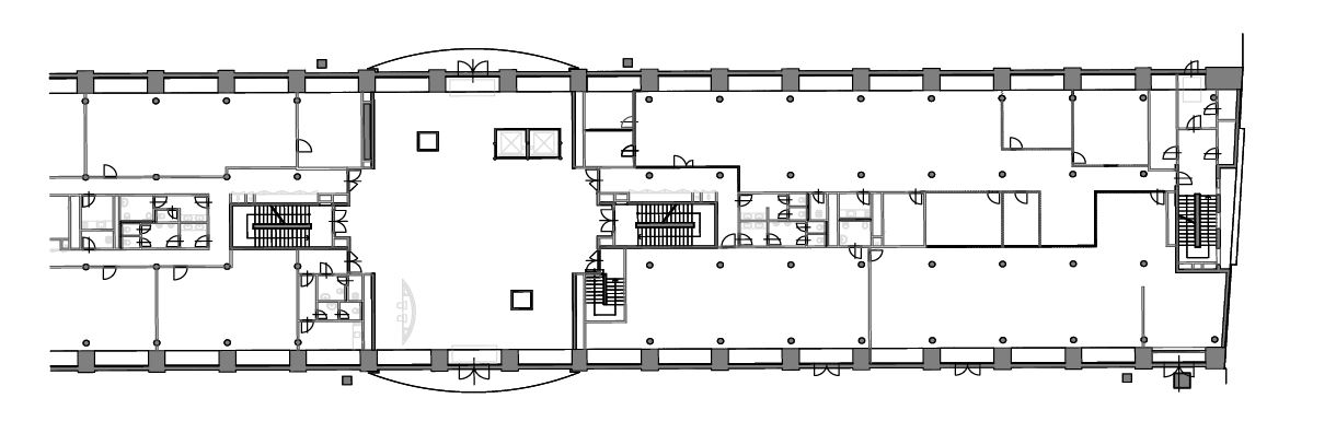
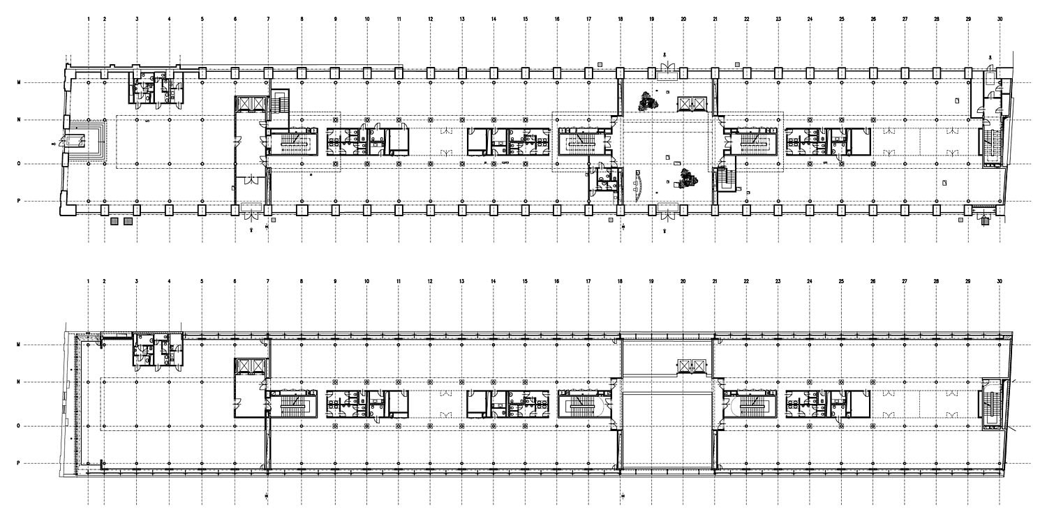
Corso Karlín nabízí celkem cca 9 300 m2 kancelářských ploch, které jsou navrženy tak, aby splňovaly požadavky moderních firem. Dispozice prostor umožňuje variabilní uspořádání – od otevřených open space řešení až po členěné kanceláře. Industriální prvky, jako jsou vysoké stropy, velká okna a zachované konstrukční detaily, vytvářejí jedinečnou atmosféru, která podporuje kreativitu i efektivitu.
Technické vybavení zahrnuje klimatizaci, otevíratelná okna, podhledy, moderní osvětlení a dostatek denního světla. Budova je vybavena centrální recepcí, nonstop ostrahou, přístupovým systémem na karty a nabízí přístup 24/7. Nájemci mají k dispozici parkovací místa přímo v areálu.
Udržitelnost a efektivní provoz
Corso Karlín je navržen s důrazem na efektivní provoz a dlouhodobou udržitelnost. Díky moderním technologiím a kvalitním materiálům nabízí nízké provozní náklady a stabilní vnitřní prostředí. Spojení historického industriálního charakteru s moderními prvky vytváří atraktivní pracovní prostředí, které podporuje firemní kulturu i profesionální image.
Skvělá dopravní dostupnost
Jedním z hlavních benefitů Corso Karlín je jeho vynikající dopravní dostupnost. Budova se nachází v bezprostřední blízkosti stanice metra Křižíkova (trasa B) a tramvajových zastávek, což zajišťuje rychlé spojení s centrem města i dalšími částmi Prahy. Pobřežní ulice umožňuje snadný přístup na Severojižní magistrálu, což ocení zejména firmy s častými obchodními cestami.
Lokalita je dobře dostupná i autem, s možností parkování přímo v areálu. V okolí se nachází také cyklostezky, které podporují ekologickou dopravu a aktivní životní styl.
Kompletní občanská vybavenost a služby
Karlín je známý svou bohatou občanskou vybaveností. V okolí Corso Karlín se nachází restaurace, kavárny, obchody, lékárny, banky, fitness centra i hotely, což zajišťuje pohodlné zázemí pro každodenní provoz firmy i pro obchodní schůzky. Díky blízkosti kulturních a volnočasových zařízení je lokalita atraktivní i z hlediska životního stylu zaměstnanců.
Lokalita s historií a moderním duchem
Karlín patří mezi nejdynamičtěji se rozvíjející části Prahy. V posledních letech se z industriální čtvrti proměnil v moderní městské centrum s vysokou koncentrací firem, startupů, kreativních studií i technologických společností. Corso Karlín těží z této transformace a nabízí firmám možnost sídlit v prostředí, které podporuje inovace, růst a profesionální image.
Ideální zázemí pro firmy s důrazem na styl a dostupnost
Corso Karlín je ideální volbou pro společnosti, které hledají moderní kancelářské prostory v atraktivní lokalitě, s důrazem na design, dostupnost a kvalitní zázemí. Kombinace vysokého technického standardu, výborné dopravní dostupnosti, široké nabídky služeb a inspirativního prostředí vytváří ideální podmínky pro efektivní práci i spokojenost zaměstnanců. Budova je připravena splnit nároky firem, které chtějí investovat do kvalitního zázemí s dlouhodobou perspektivou.
Nájemce NEPLATÍ PROVIZI, navíc zajistíme SLEVY NEBO POBÍDKY
10-25%
MOŽNÁ HLEDÁTE



