Metalica

Radlická 365/154, Praha 5
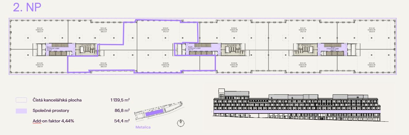
250 m² - 1569 m²
17,50-18,50 EUR/m²/měsíc
B
Přístup 24/7
Zelená budova
Přístup na karty
Klimatizace
Otevíratelná okna
Parkování
Zdvojené podlahy
Centrální recepce
Ostraha
Sprinklery
Podhledy
Ventillace
Administrativní budovy s názvem METALICA a LEGATICA nabízí svým nájemcům nejen vysoký standard, ale také mnoho dalšího – komunitní zahradu na střechách, velkolepé terasy s panoramatickými výhledy a přívětivé zázemí pro sportovce v podobě koláren a sprch. V areálu nové čtvrti naleznete také Hotel Zleep se 166 pokoji, zelený bulvár s herními a vodními prvky, fitness centrum s více než 1500 m2 plochy, saunou a soláriem, nebo třeba kavárnu a vinárnu KOFÍNNO s venkovní zahrádkou.
Projekt Waltrovka leží na velmi dynamicky se rozvíjejícím území Prahy 5 - Jinonice, na hranici širšího centra Prahy, v sousedství městských čtvrtí Anděl, Radlice a Butovice. Tyto městské části se staly v posledních letech vyhledávanými místy pro úspěšné firmy a nabízí plně fungující zázemí a vybavenost. Lokalita je výborně dostupná všemi dopravními prostředky a kromě automobilové dopravy lze pohodlně využít spojení metra, autobusových a vlakových spojů.

Kontaktujte nás

Pavel Novák

Vedoucí oddělení pronájmu kanceláří

Matěj Baranek

Associate Director

Ondřej Šimek

Associate

Martin Ducháč

Senior Office Consultant

Eliška Kantorová

Leasing Consultant

Renata Kromíchalová

Research Analyst & Team Coordinator

Zuzana Šancová

Senior Office Consultant

Metalica: moderní kanceláře s komunitní atmosférou v srdci Waltrovky

Administrativní budova Metalica, která se nachází v prestižní lokalitě Prahy 5 – Jinonice, je součástí moderní městské čtvrti Waltrovka. Tento architektonicky atraktivní objekt nabízí kancelářské prostory k pronájmu od 250 m2 do 1 686 m2 za cenu od 17,50 EUR/m2/měsíc. Budova vyniká nejen vysokým technickým standardem, ale také důrazem na udržitelnost, komunitní prvky a kvalitní pracovní prostředí. Díky své poloze, dostupnosti a vybavenosti je Metalica ideálním místem pro firmy, které hledají inspirativní zázemí v širším centru Prahy.

Kancelářské prostory s důrazem na flexibilitu a pohodlí

Metalica nabízí moderní kancelářské prostory, které lze snadno přizpůsobit potřebám nájemců. Dispozice umožňuje jak otevřené open space řešení, tak i členění na menší kanceláře. Prostory jsou vybaveny klimatizací, ventilací, zdvojenými podlahami, podhledy, otevíratelnými okny a žaluziemi, což zajišťuje maximální komfort a efektivní provoz. Díky dostatku denního světla a kvalitnímu technickému zázemí je prostředí vhodné pro soustředěnou práci i týmovou spolupráci.

Budova disponuje centrální recepcí, nonstop ostrahou, přístupovým systémem na karty a sprinklerovým systémem, který splňuje nejnovější bezpečnostní normy. Přístup 24/7 je samozřejmostí, což ocení firmy s flexibilním provozem nebo mezinárodními týmy. V areálu je k dispozici dostatek parkovacích míst, včetně zázemí pro cyklisty.

Udržitelnost a komunitní prvky

Metalica je zelená budova s certifikátem LEED Gold, která klade důraz na udržitelnost a zdravé pracovní prostředí. Součástí projektu jsou komunitní střešní zahrady, které slouží jako prostor pro odpočinek, neformální setkání i pracovní pauzy. K dispozici jsou také velkolepé terasy s panoramatickými výhledy na Prahu a okolní čtvrti.

Sportovně založení nájemci ocení kolárny a sprchy, které podporují aktivní životní styl. V rámci areálu Waltrovka se nachází také fitness centrum o rozloze přes 1 500 m2, sauna, solárium a další relaxační zázemí. Budova je navíc připravena na nárůst elektromobility, což z ní činí dlouhodobě udržitelné pracovní prostředí.

Skvělá dopravní dostupnost

Lokalita Waltrovka nabízí vynikající dopravní dostupnost. Budova Metalica se nachází v docházkové vzdálenosti od stanice metra Jinonice (trasa B), odkud je možné se během několika minut dostat do centra města. V blízkosti se nachází také autobusové a vlakové spoje, které zajišťují pohodlné spojení s ostatními částmi Prahy i okolím.

Automobilová doprava je rovněž bezproblémová – lokalita nabízí rychlé napojení na Městský okruh i hlavní silniční tahy. Díky tomu je Metalica snadno dostupná jak pro zaměstnance, tak pro obchodní partnery.

Kompletní občanská vybavenost a služby

Areál Waltrovka je navržen jako plnohodnotná městská čtvrť, která nabízí široké spektrum služeb a občanské vybavenosti. V bezprostřední blízkosti budovy Metalica se nachází kavárna a vinárna KOFÍNNO s venkovní zahrádkou, hotel Zleep se 166 pokoji, obchody, restaurace, lékárna, bankomaty i služby denní potřeby. Tato kombinace zajišťuje pohodlné zázemí pro každodenní provoz firmy i pro obchodní schůzky.

Lokalita s potenciálem a kvalitním zázemím

Jinonice a širší oblast Prahy 5 patří mezi nejrychleji se rozvíjející části města. V sousedství čtvrtí Anděl, Radlice a Butovice vzniká moderní městské prostředí, které přitahuje úspěšné firmy i nové rezidenty. Projekt Waltrovka je ukázkou kvalitního urbanistického rozvoje, který kombinuje moderní architekturu, přírodu a občanskou vybavenost v harmonickém celku.

Ideální zázemí pro firmy s důrazem na kvalitu a komunitu

Metalica je ideální volbou pro firmy, které hledají moderní kancelářské prostory v atraktivní lokalitě, s důrazem na udržitelnost, komunitní atmosféru a vysoký standard. Kombinace kvalitního technického vybavení, výborné dostupnosti, služeb a příjemného prostředí vytváří ideální podmínky pro růst, efektivitu a spokojenost zaměstnanců. Budova je připravena splnit nároky firem, které chtějí investovat do kvalitního zázemí s dlouhodobou perspektivou.

Nájemce NEPLATÍ PROVIZI, navíc zajistíme SLEVY NEBO POBÍDKY

10-25%