Keystone
Kontaktujte nás

Pavel Novák
Vedoucí oddělení pronájmu kanceláří

Matěj Baranek
Associate Director

Ondřej Šimek
Associate

Martin Ducháč
Senior Office Consultant

Eliška Kantorová
Leasing Consultant

Renata Kromíchalová
Research Analyst & Team Coordinator

Zuzana Šancová
Senior Office Consultant
Prémiové kanceláře k pronájmu v Praze 8 – Keystone, Karlín
Administrativní budova Keystone na prestižní adrese Pobřežní 78, Praha 8, nabízí reprezentativní kancelářské prostory s výjimečným architektonickým řešením, skvělou dostupností a kompletním technickým zázemím. Je ideální volbou pro firmy, které hledají spojení moderní kanceláře s flexibilním uspořádáním prostor a bohatou občanskou vybaveností.
Reprezentativní kancelářské prostory s důrazem na detail
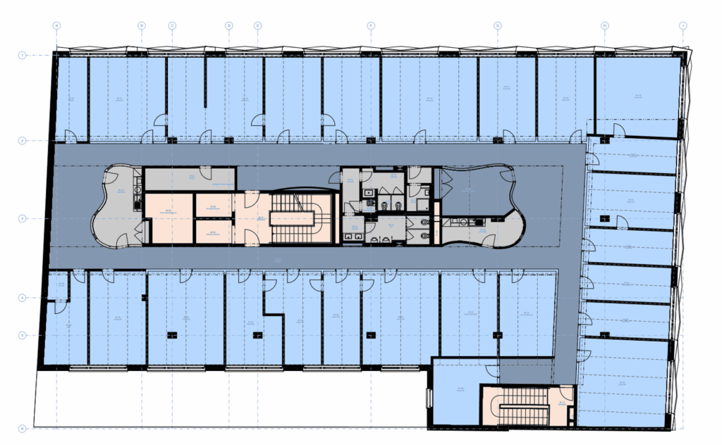
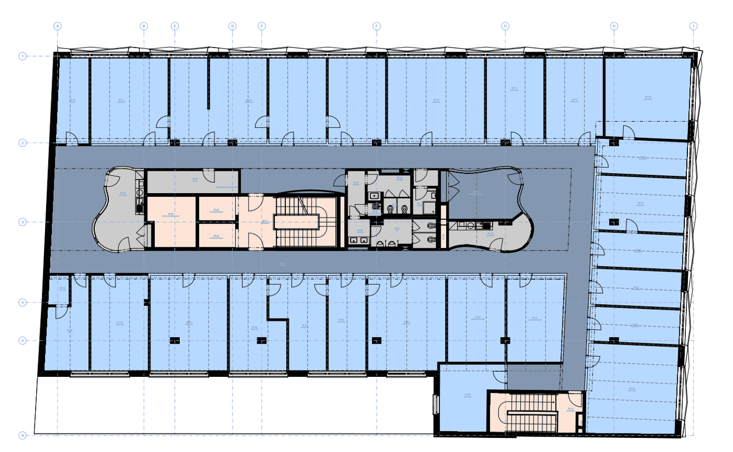
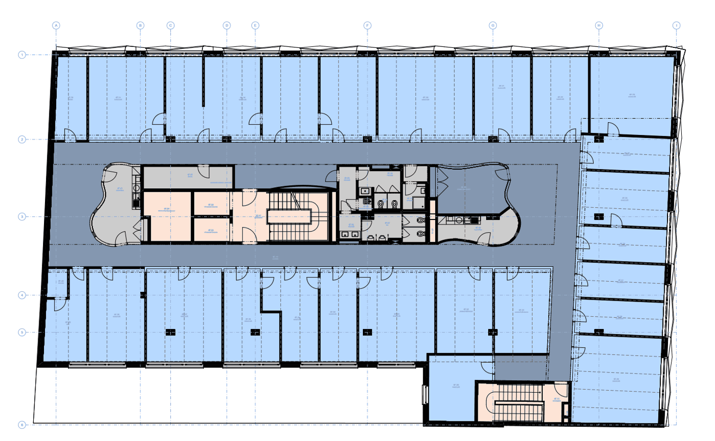
Budova Keystone nabízí kanceláře o rozloze od 150 m2 do 295 m2, přičemž celková plocha činí přibližně 6 500 m2. Prostory jsou navrženy s maximální flexibilitou a lze je snadno přizpůsobit potřebám různě velkých týmů a firem. Díky zdvojeným podlahám, klimatizaci, ventilaci, sníženým podhledům, otevíratelným oknům a dalším prvkům odpovídají kanceláře požadavkům na komfortní a efektivní pracovní prostředí.
Přístup do objektu je možný 24/7 prostřednictvím čipových karet a centrální recepce s ostrahou. K dispozici je dostatek parkovacích míst. Designová recepce a propracované detaily společných prostor podtrhují reprezentativní charakter budovy.
Snadná dopravní dostupnost
Keystone se nachází na Rohanském nábřeží s výborným napojením na MHD i automobilovou dopravu. Stanice metra Křižíkova (trasa B) a zastávky tramvají jsou v docházkové vzdálenosti. Karlín zároveň umožňuje rychlé napojení na magistrálu i městský okruh. Nájemci mohou využívat i kolárnu se zázemím, což podporuje ekologické způsoby dopravy.
Kompletní občanská vybavenost
V okolí budovy se nachází kavárny, restaurace, obchody, banky, lékárny, fitness centra i zdravotnická zařízení. Karlín je známý svou živou gastro scénou s pestrou nabídkou pro pracovní obědy, obchodní schůzky i odpočinek po práci. V docházkové vzdálenosti jsou supermarkety i služby denní potřeby.
Karlín – čtvrť s duší i potenciálem
Karlín se v posledních dekádách proměnil z industriální čtvrti v moderní kancelářskou a rezidenční zónu. Dnes patří k nejvyhledávanějším pražským lokalitám, kde se kombinuje výborná poloha, kvalitní architektura, kulturní scéna a dostatek zeleně. Oblíbeným místem relaxace je park Kaizlovy sady nebo nábřežní promenády.
Shrnutí výhod kanceláří Keystone
- Designová kancelářská budova inspirovaná českým kubismem
- Flexibilní kancelářské jednotky od 150 do 295 m2
- Výborná dopravní dostupnost – metro Křižíkova, tramvaje, parkování i kolárna
- Kompletní občanská vybavenost v bezprostředním okolí
- Prestižní lokalita Karlína s vysokou koncentrací firem, služeb a kultury
Keystone je ideálním pracovním zázemím pro firmy, které chtějí spojit moderní design, reprezentativní prostředí a strategickou polohu v jedné z nejperspektivnějších částí Prahy.
Nájemce NEPLATÍ PROVIZI, navíc zajistíme SLEVY NEBO POBÍDKY
10-25%
MOŽNÁ HLEDÁTE


