Thámova 18
Kontaktujte nás

Pavel Novák
Vedoucí oddělení pronájmu kanceláří

Matěj Baranek
Associate Director

Ondřej Šimek
Associate

Martin Ducháč
Senior Office Consultant

Eliška Kantorová
Leasing Consultant

Renata Kromíchalová
Research Analyst & Team Coordinator

Zuzana Šancová
Senior Office Consultant
Thámova 18 – Flexibilní kanceláře v atraktivní lokalitě Karlína s vynikající dostupností
Thámova Office Centrum nabízí moderní kancelářské prostory k pronájmu v atraktivní lokalitě Prahy 8 – Karlíně, která patří k nejdynamičtěji se rozvíjejícím čtvrtím v metropoli. Díky své strategické poloze v těsné blízkosti metra Křižíkova a výbornému napojení na centrum i hlavní dopravní tahy představuje ideální volbu pro firmy všech velikostí. Objekt poskytuje flexibilní dispozice kanceláří od menších jednotek až po rozsáhlejší open space prostory, doplněné moderním technickým zázemím a vysokým standardem vybavení.
Variabilní kanceláře se skvělým zázemím
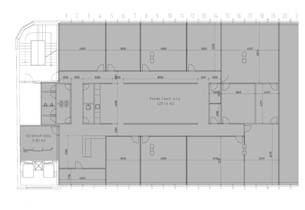
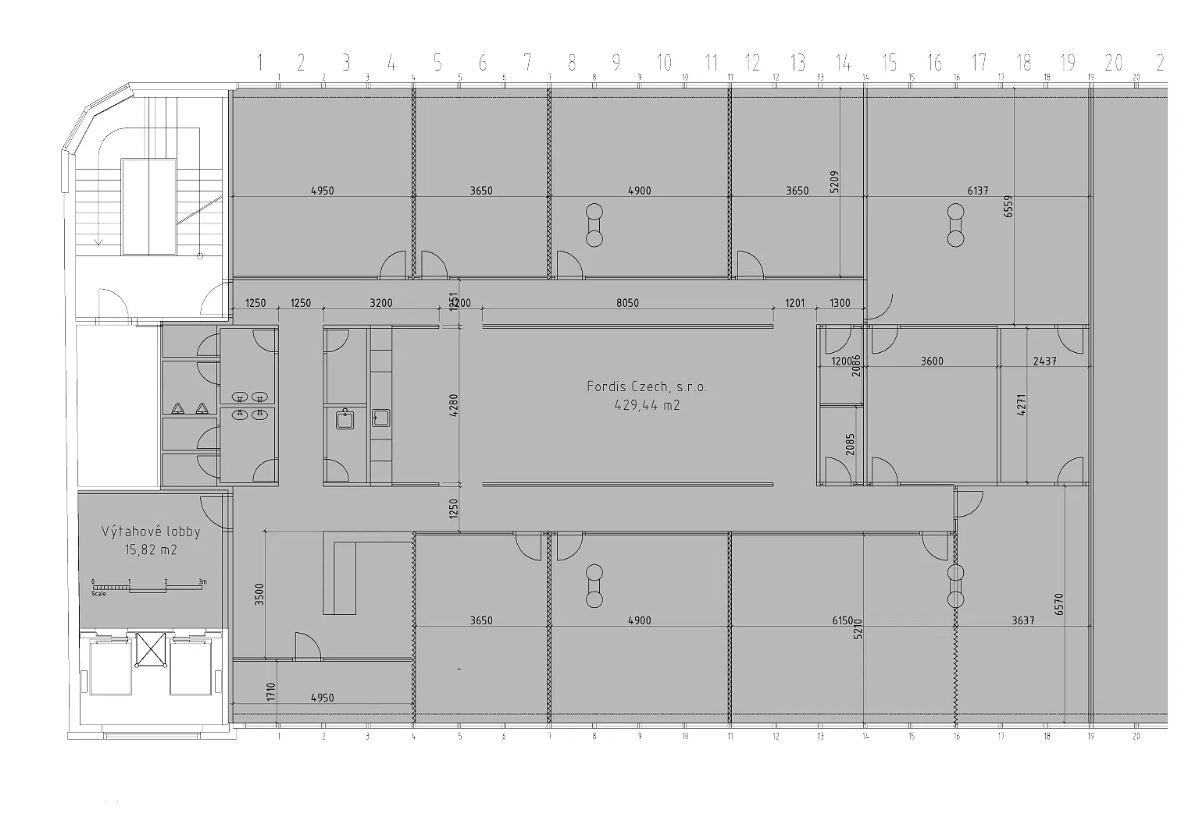
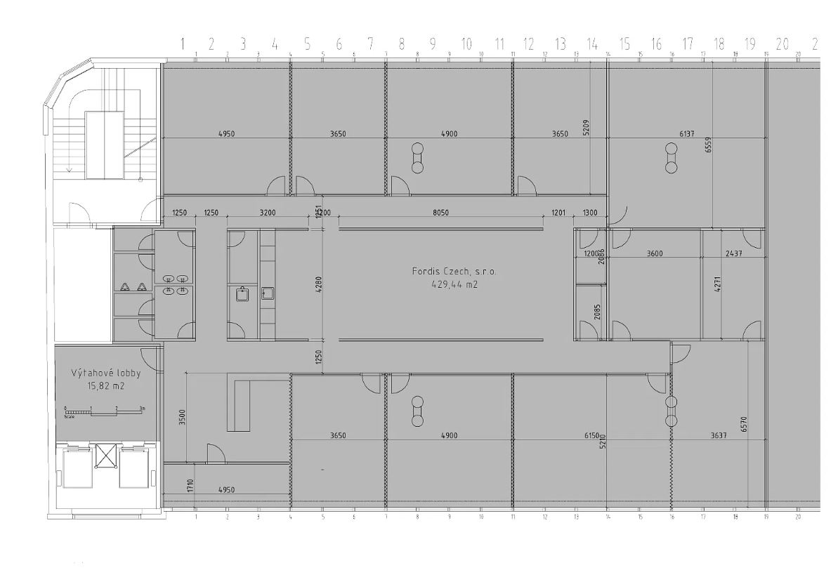
Thámova 18 poskytuje kancelářské prostory od 100 m² do 800 m², vhodné pro menší i středně velké firmy. Dispozice lze snadno přizpůsobit – od otevřených open space prostor po uzavřené kanceláře. K vybavení patří klimatizace, otevíratelná okna, zdvojené podlahy a podhledy. Vstup do budovy je řízen přístupem na karty, centrální recepce a 24/7 přístup zajišťují profesionální provoz i bezpečnost.
Perfektní dopravní dostupnost
Budova se nachází jen 5 minut chůze od metra Křižíkova (B) a několika tramvajových linek. Díky napojení na rychlostní silnici D8 a pražskou magistrálu je snadno dostupná i autem. Lokalita podporuje i alternativní dopravu – v blízkosti se nachází cyklostezka a parky, které usnadňují ekologické spojení s dalšími částmi Prahy.
Kompletní občanská vybavenost
Karlín je vyhlášený svou bohatou infrastrukturou. V okolí Thámovy 18 se nachází množství kaváren, bister a restaurací ideálních pro obchodní schůzky i pracovní pauzy. Nechybí zde banky, lékárny, fitness centra, obchody a další služby. V blízkosti jsou také parky a relaxační zóny, které zaměstnancům nabízejí možnost odpočinku a aktivního životního stylu.
Karlín – prestižní lokalita s rostoucím potenciálem
Karlín patří k nejatraktivnějším částem Prahy, kde se snoubí historická architektura s moderní infrastrukturou. Čtvrť je oblíbená u developerů, technologických firem i kreativních odvětví. Díky blízkosti centra, skvělé dopravní dostupnosti a bohaté nabídce služeb je Karlín ideálním místem pro podnikání i každodenní život. Thámova 18 se tak stává vyhledávanou adresou s vysokou prestiží a stabilním růstovým potenciálem.
Klíčové benefity Thámova 18
- Lukrativní adresa v srdci Karlína – prestižní pražská čtvrť
- Skvělá dopravní dostupnost – metro B Křižíkova, tramvaje, D8
- Flexibilní kanceláře od 100 do 800 m²
- Moderní technické zázemí – klimatizace, otevíratelná okna, zdvojené podlahy, recepce, 24/7 přístup
- Bohatá občanská vybavenost – gastronomie, služby, fitness, obchody
- Ekologická doprava – cyklostezky a zelené plochy v okolí
Thámova 18 představuje ideální kancelářské zázemí pro firmy, které hledají moderní a flexibilní prostory v reprezentativní lokalitě Karlína. Nabízí spojení kvalitního pracovního prostředí s výhodami prestižní městské čtvrti.
Nájemce NEPLATÍ PROVIZI, navíc zajistíme SLEVY NEBO POBÍDKY
10-25%
MOŽNÁ HLEDÁTE

