Uniqa Business Center
Kontaktujte nás

Pavel Novák
Vedoucí oddělení pronájmu kanceláří

Matěj Baranek
Associate Director

Ondřej Šimek
Associate

Martin Ducháč
Senior Office Consultant

Eliška Kantorová
Leasing Consultant

Renata Kromíchalová
Research Analyst & Team Coordinator

Zuzana Šancová
Senior Office Consultant
Uniqa Business Center: Pronájem kancelářských prostor v Brně
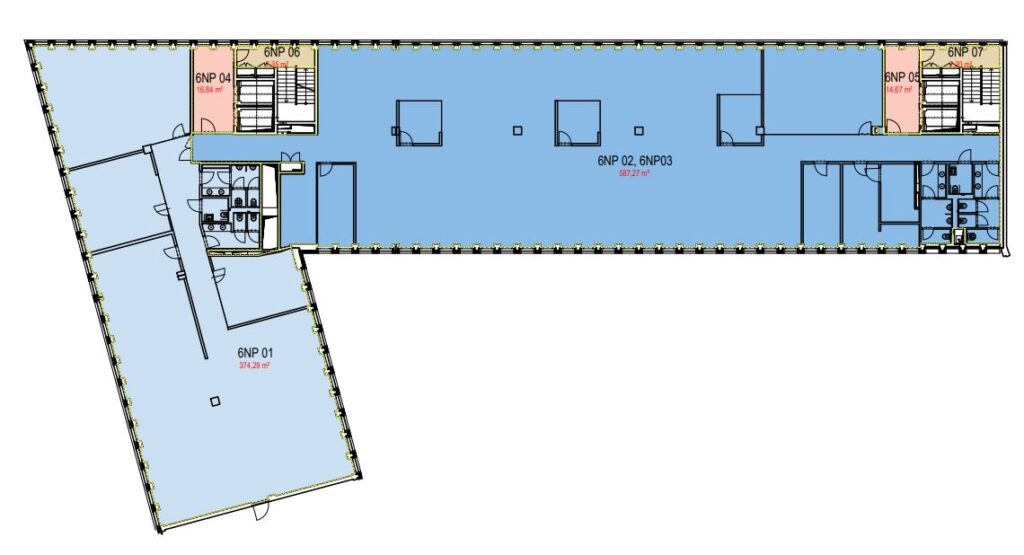
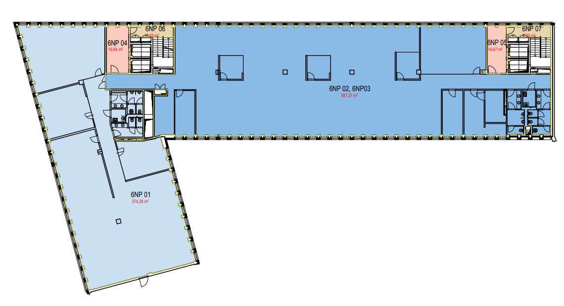
Uniqa Business Center je moderní multifunkční budova v centru Brna, která nabízí kancelářské prostory k pronájmu od 200 m2 do 949 m2 za cenu od 13,60 EUR/m2/měsíc. Díky vysokým technickým standardům, modernímu designu a skvělé dostupnosti je ideální volbou pro firmy všech velikostí, které hledají kvalitní pracovní prostředí v prestižní lokalitě.
Flexibilní kancelářské prostory
Budova nabízí variabilní kancelářské jednotky s výhledem do vnitrobloku nebo na ulice Úzká a Hamburská. K dispozici je klimatizace, otevíratelná okna, zdvojené podlahy a podhledy, které umožňují snadnou instalaci IT infrastruktury a přizpůsobení prostor konkrétním potřebám nájemců.
Moderní technologie a komfort
Uniqa Business Center je vybaveno centrální recepcí, nonstop ostrahou, systémem přístupových karet a sprinklery. Samozřejmostí je 24/7 přístup do budovy. Ventilace a klimatizace zajišťují optimální pracovní podmínky po celý rok. Pro nájemce jsou k dispozici také podzemní garáže pro pohodlné parkování.
Vynikající dopravní dostupnost
Lokalita jižního centra Brna zajišťuje výbornou dopravní dostupnost autem i MHD. V blízkosti se nachází Galerie Vaňkovka, Katastrální úřad a obchodní dům Tesco, které doplňují občanskou vybavenost i možnosti pro obchodní aktivity. Areál je navíc dobře napojen na hlavní silniční tahy a městskou hromadnou dopravu.
Exkluzivní zázemí pro nájemce
Kromě kancelářských prostor nabízí budova také obchodní jednotky v přízemí. Multifunkční charakter objektu, moderní infrastruktura a možnost parkování v podzemních garážích činí z Uniqa Business Center atraktivní sídlo pro firmy, které chtějí spojit kvalitní zázemí s prestižní adresou.
Strategická lokalita
Uniqa Business Center se nachází v dynamicky se rozvíjející části Brna, která je centrem obchodu a administrativy. Vysoká koncentrace firem, kancelářských projektů a služeb vytváří prostředí ideální pro networking a růst podnikání. Lokalita má obrovský potenciál do budoucna díky kontinuálnímu rozvoji a poptávce po moderních kancelářích.
Proč zvolit Uniqa Business Center?
- Prémiová lokalita v centru Brna s výbornou dostupností autem i MHD
- Flexibilní kancelářské jednotky od 200 m2 do 949 m2
- Moderní technologie – klimatizace, ventilace, otevíratelná okna, zdvojené podlahy
- Bezpečné zázemí – přístup na karty, nonstop ostraha, sprinklery, 24/7 přístup
- Obchodní jednotky a parkování v podzemních garážích
- Součást atraktivní kancelářské zóny v rozvíjejícím se centru Brna
Uniqa Business Center je ideálním řešením pro firmy, které hledají moderní, flexibilní a dostupné kancelářské prostory v Brně. Nabízí reprezentativní zázemí s možností růstu v dynamické lokalitě s budoucím potenciálem.
Nájemce NEPLATÍ PROVIZI, navíc zajistíme SLEVY NEBO POBÍDKY
10-25%
MOŽNÁ HLEDÁTE



